|
项目名称 |
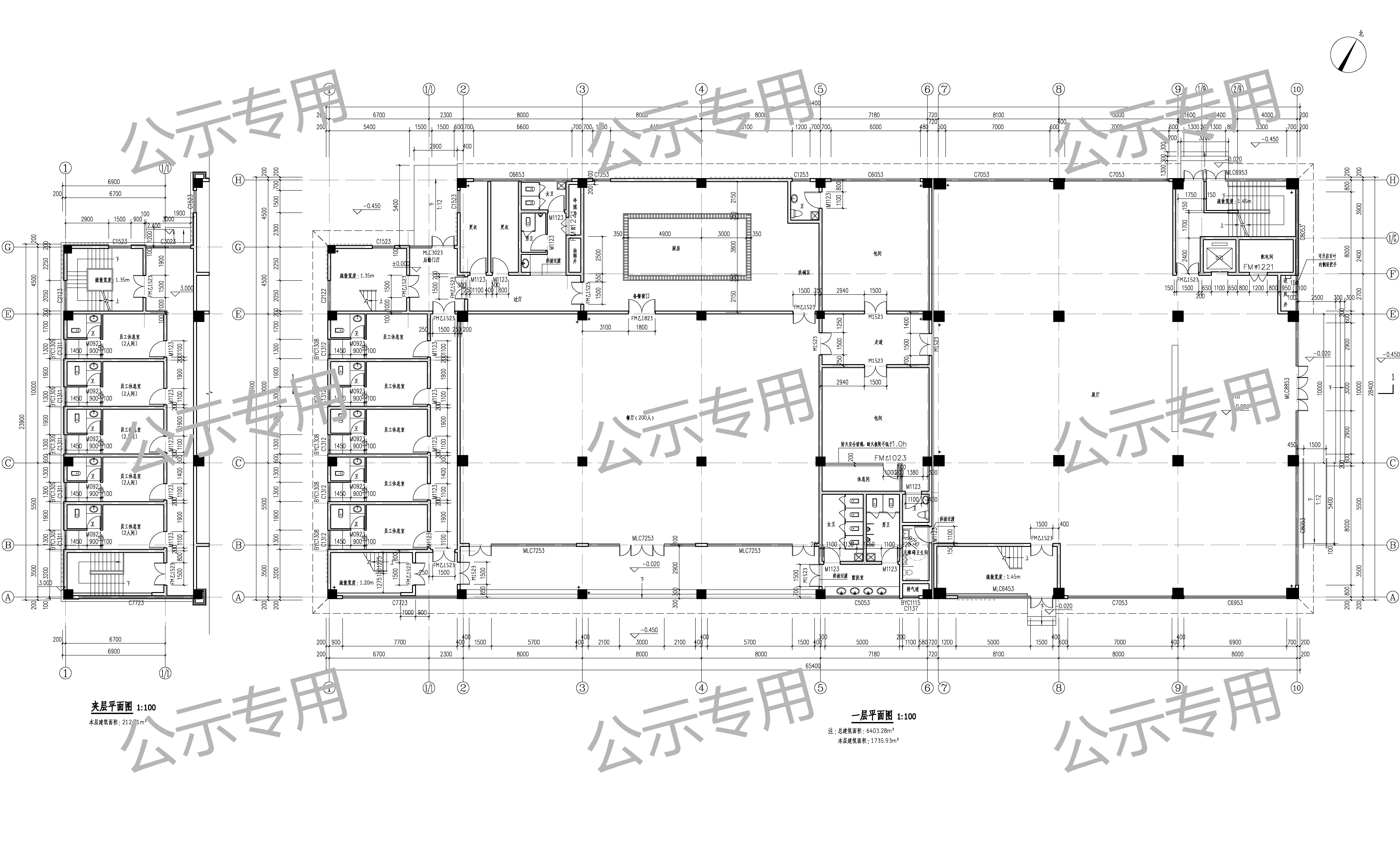
许昌泽海智慧配网产业园项目 |
|
公示类型 |
批前公示 |
|
公示类别 |
建设工程规划许可证公示 |
|
建设单位 |
许昌泽海园区管理有限公司 |
|
用地位置 |
魏武大道以东、尚集北街以南 |
|
用地面积 |
红线内52270平方米,绿线内46804平方米 |
|
总建筑面积 |
44751.59平方米 |
|
建筑高度 |
>12米 |
|
建筑系数 |
58.09% |
|
容积率 |
1.53 |
|
绿地率 |
8.78% |
|
机动车停车位 |
50个 |
|
公示期限 |
7个工作日 |
|
经办科室 |
许昌市城乡一体化示范区规划委员会办公室 |
|
咨询电话 |
0374-3372899/0374-3378822 |
|
附加说明 |
查询详细内容,请出示身份证证明,到我办办理相关手续后查询。依据《中华人民共和国城乡规划法》《中华人民共和国行政许可法》《城乡规划公开公示办法》等有关法律法规,特此公示。如有意见和建议,请在7个工作日内向我办以书面形式提出,相关利害关系人认为影响其合法权益,需要进行听证的,请在公示期内申请听证,逾期不提出意见或申请听证的,我办将依法办理规划审批手续。 |
|
详细内容 |
总平面图、一层平面图、立面图、效果图 |









